Property Description
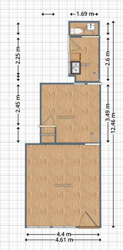
Town Centre Commercial Premises, Ideal for Retail, Office, or Beauty Use. This well-positioned ground-floor commercial unit offers a fantastic opportunity for a variety of business uses, close to High Street & Queen Street Junction. The property enjoys strong passing trade from both vehicles and pedestrians, with established local shops nearby, ensuring consistent footfall and great exposure. Briefly, it comprises a large shop window, trade space, store room, kitchen area and W.C. A new business could be enhanced through collaborating with the established Chamber of Trade, through which local businesses cooperate for mutual benefit.
Video
Floor Plan
Map
EPC









