Underhill estate agents are delighted to offer this one-bedroom, first-floor freehold flat, in the centre of Dawlish. This 200-year-old, grade II-listed building has its own private garden and a share of the freehold; while the front of the property must be maintained like-for-like, the side and rear double glazing has been installed to improve energy efficiency. The property overlooks the beautiful Dawlish brook and is situated just minutes from the beach. Within minutes' walk of the town shops, the lawn, a bus stop and the train station, this is a great home for a first-time buyer or someone just trying to get themselves a slice of seaside living! Gas central heating,
Entrance
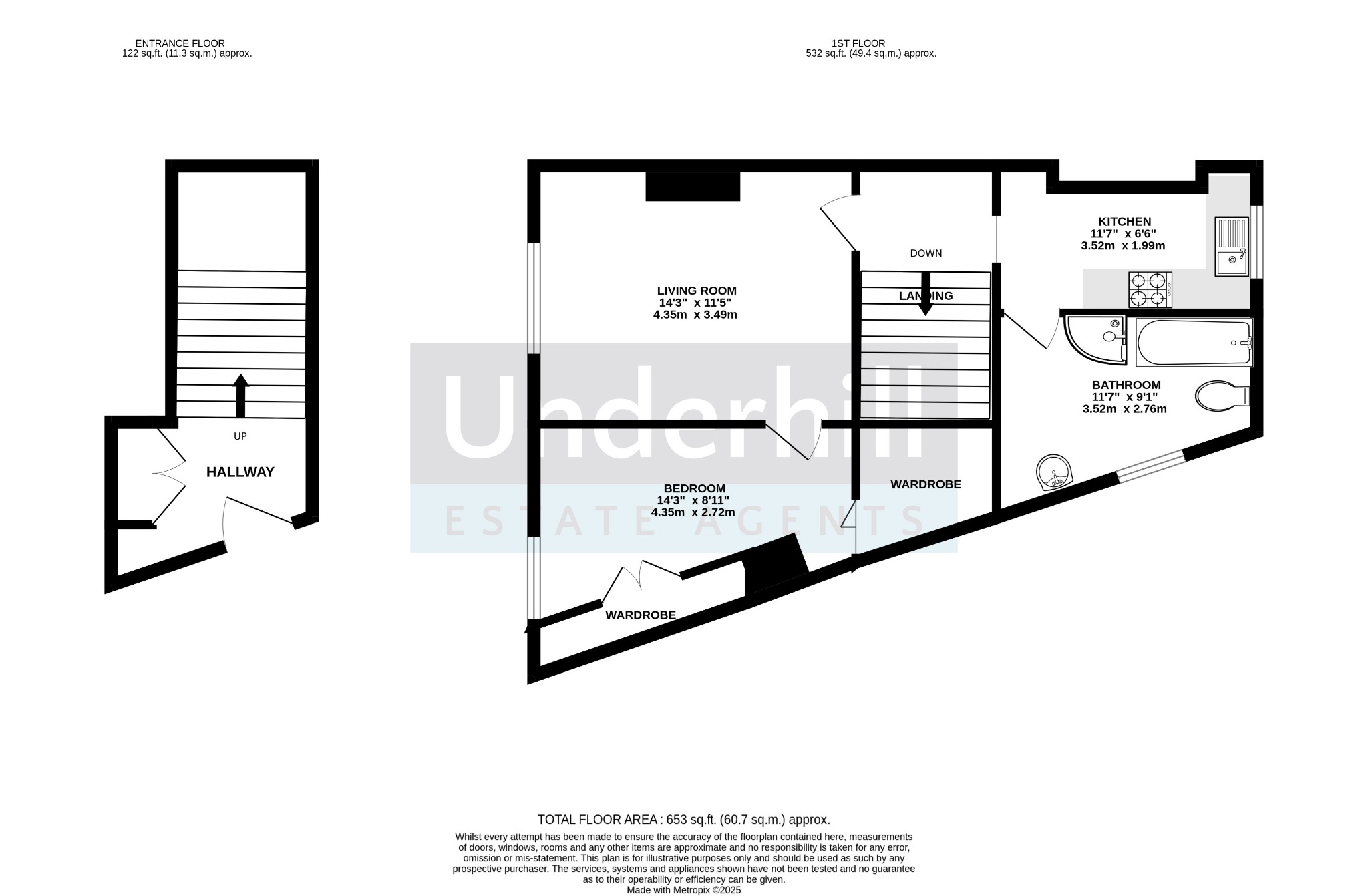
The property is reached from the street via a metal gate and side door. The modern composite door opens to the lobby.
Lobby
This ground floor lobby houses the meters and provides storage in the form of a tall cupboard. The stars lead to the first floor.
First Floor Landing
This area is large enough for additional storage and leads to the living room and kitchen.
Living Room:
The living room features a bay wooden framed window that views over the Lawn, Brook and out towards Tucks Plot. The window, as part of the grade II listing, must be kept wooden. A double radiator, TV and phone points, and a satellite point are all installed.
Bedroom:
The bedroom has plenty of space for storage with both a large built-in sliding wardrobe and a walk-in storage space with a folding door. The room also looks out toward the front of the property and has a wooden sash window.
Kitchen:
The kitchen provides plenty of preparation and storage space. Featuring downlights, a range of wall and base units, a ceramic single sink and drainer, and space for a washing machine and fridge freezer. A Upvc double glazed window overlooks the rear of the property.
Bathroom:
The bathroom is spacious and features a uPVC double-glazed window, downlights, close-coupled WC, panelled bath, pedestal sink, power corner shower, vinyl flooring and chrome heated towel rail.
Outside:
Accessed via a shared alleyway, the property features a low-maintenance, private enclosed courtyard. This currently features a combination of decking and patio areas and includes a brick-built shed, perfect for storage.
Property Description
Video
Floor Plan
Map
EPC








