Underhill Estate Agents are delighted to bring to market this well presented 2 bedroom park home on an elevated plot with great views over Exeter and countryside, located at the end of a quiet street. This well maintained plot is one of the largest on the very popular Ringwells Park, Exeter. The recently redecorated property has a spacious living room, modern fitted kitchen-diner, shower room and 2 double bedrooms. The property further benefits from double glazing throughout, electric central heating and a private patio garden and summer house.
Ringswell Park is situated on the outskirts of the City and benefits from amazing rural and City views. Exclusively for the over 50s, Ringswell Park is a friendly and safe community for you to enjoy your retirement. Transport links are great as the park is centrally located for all means of transport, including Exeter Airport, M5 access, the National rail network and stagecoaches.
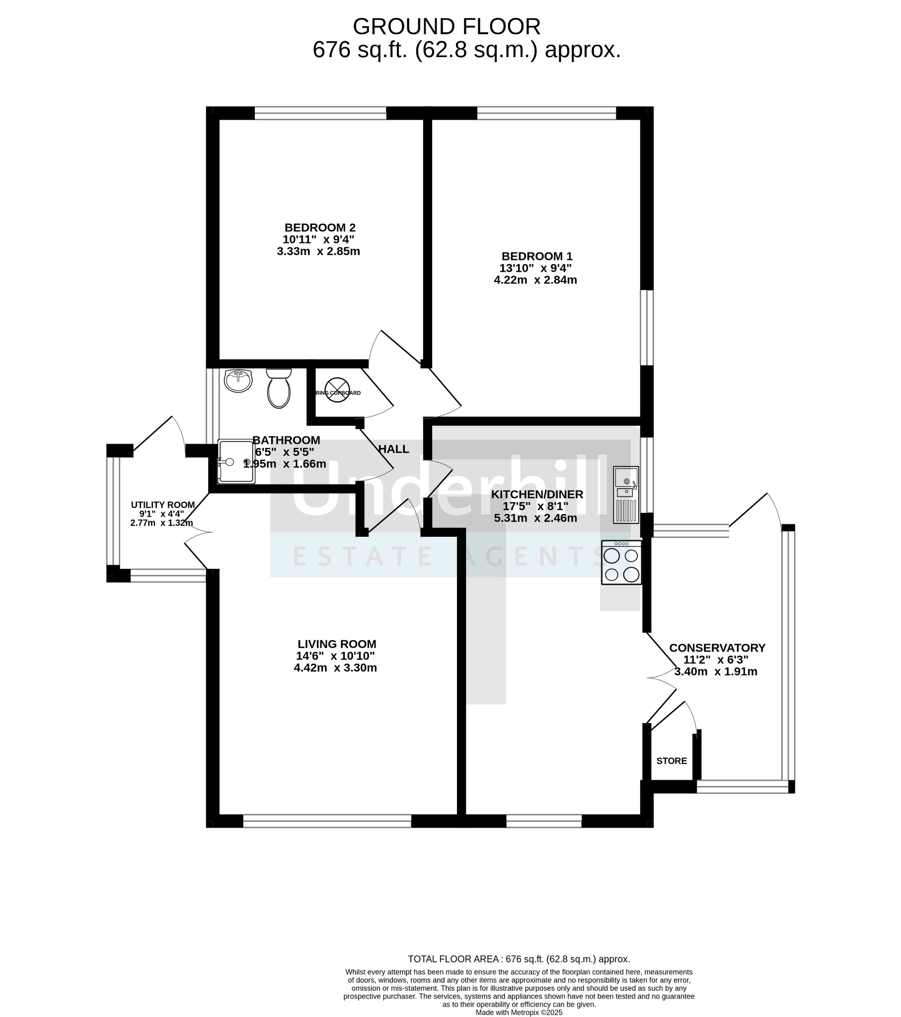
Porch/Utility Room
9' 1" (2.77m) x 4' 4" (1.32m):
UPVC double glazed door and window, space for washing machine and tumble dryer, and carpeted flooring. Double doors leading to:
Living Room
14' 6" (4.42m) x 10' 10" (3.30m):
Spacious living room with UPVC double glazed window, single radiator, electric fireplace, TV aerial point, telephone socket and carpeted flooring. Door leading to:
Kitchen-Diner
17' 5" (5.31m) x 8' 1" (2.46m):
A spacious and modern newly fitted kitchen with wood effect wall and base units, roll top work surface, one and a half bowl stainless steel sink with drainer, eye level oven, gas hob, space for under counter fridge and freezer, UPVC double glazed window and double doors leading to the conservatory, double radiator and wood effect vinyl flooring.
Conservatory
11' 2" (3.40m) x 6' 3" (1.91m):
UPVC double glazed windows and door leading to patio, carpeted flooring.
Bedroom One
13' 10" (4.22m) x 9' 4" (2.84m):
A spacious double bedroom with UPVC double glazed window, single radiator, telephone point and carpeted flooring.
Bedroom Two
9' 4" (2.84m) x 10' 11" (3.33m):
Double bedroom with UPVC double glazed window, single radiator and carpeted flooring.
Shower Room
5' 5" (1.65m) x 6' 5" (1.96m):
Newly fitted shower room with UPVC obscured double glazed window, single radiator, low level WC, pedestal sink, shower room and vinyl flooring.
Garden
A private patio garden, paved and gravelled for ease of maintenance, space for off road parking. Fenced all round with mature plants and shrubs, a wooden summer house (with electricity) and covered drying area.
EPC Rating: Exempt
Council Tax: Band A
Ground Rent: £159.22 per month (reviewed annually in January)
Over 50's Only
Please note: Some property images may have been virtually staged using AI technology to illustrate potential interior design ideas.
Property Description
Video
Floor Plan
Map
EPC
















