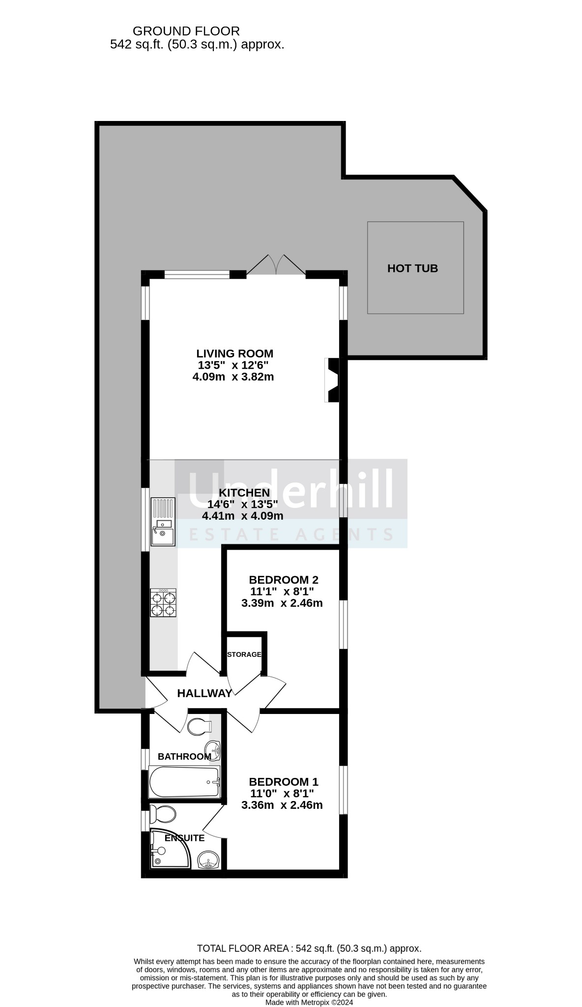
Underhill Estate Agents are delighted to bring to market this 2 bed luxury lodge set on a central plot in this award-winning holiday resort & spa. This well maintained holiday home offers a modern open plan lliving room with a modern fitted kitchen/dining area with integrated appliances, 2 bedrooms and two modern fitted bathrooms, a large private sun terrace with its very own private hot tub and allocated parking right outside the property. Viewings are highly recommended at this fantastic lodge.
Finlake Holiday Park and Spa is a 5 star award winning holiday resort that is set in 130 acres of beautiful South Devon countryside on the edge of Dartmoor, just half an hour from the sea and boasting outstanding leisure facilities including a heated waterpark complete with thrilling flume rides, a children’s water playground and a superbly equipped fitness centre offering classes from yoga to spin along with free-weights. Feel your cares drift away as you experience the exquisite, immersive treatments offered at Finlake’s Sirona Spa complete with 8 treatment rooms, 4 spa experiences including sauna and steam rooms and a huge indoor spa pool with jacuzzi. Children will also love the outdoor pool with its water slide and great adventure playground. Nature trails, outdoor tennis courts, two coarse fishing lakes and horse riding provide sporting opportunities for everyone. It is also superbly located only a few miles from the coastal towns of Dawlish, Teignmouth and the English Riviera.
Living Room:
A bright and spacious living space with upvc double glazed doors opening up to the decking area, upvc double glazed window, radiator, electric fire, furniture, TV, downlights, and laminate flooring. Open plan to:
Kitchen:
Modern fitted kitchen with a range of cream wall and base kitchen units, oven, built in microwave, square edge worktop, 4 ring gas hob with extractor over, round sink with mixer tap and drainer, fridge/freezer, built in slimline dishwasher, dining table, downlights, upvc double glazed window and laminate flooring. The kitchen is further equipped with all crockery, toaster and kettle.
Bathroom:
Modern fitted family bathroom with panelled bath and shower over, close coupled WC, vanity basin, chrome towel rail, extractor fan, upvc double glazed obscure glass window and vinyl flooring.
Bedroom Two:
Twin bedroom with bedroom furniture, downlights, upvc double glazed window, single radiator, built in wardrobe and carpeted flooring.
Bedroom One:
Master bedroom with bedroom furniture, downlights, upvc double glazed window to rear, single radiator and carpeted flooring. Door leading to:
En-suite:
Modern fitted shower room with corner shower enclosure, close coupled WC, vanity basin, extractor fan, downlights, upvc double glazed obscure glass window and vinyl flooring.
Outside
Large private decking area with hot tub and a peaceful and pretty outlook, perfect for star gazing or al fresco dining. Located on a peaceful and sheltered plot close to all the resort's amenities. There is also a private parking space directly outside the property.
Please email/call Underhill Estate Agents for more information of Service Charges and Lease information
EPC Rating: Exempt
Park Visit and Lodge viewings are strictly by appointment only by Underhill Estate Agents
Property Description
Video
Floor Plan
Map
EPC




















