Underhill Estate Agents are delighted to bring to market this 2 bed, Deluxe A frame holiday lodge set in the fantastic award winning Finlake Holiday Resort on the edge of Dartmoor. This is a unique opportunity to purchase an A frame lodge which rarely come to market, lodge 43 is situated in a peaceful and picturesque woodland area of Finlake resort yet within only a 5 minute stroll to all the park's main facilities. The lodge occupies an elevated position and is one of only a handful of similar lodges that provide lovely far reaching views over the tree canopy to Dartmoor and Haytor, perfect for watching the beautiful Devon sunsets. This beautifully presented holiday home has undergone some recent refurbishment and modernisation over the last 4 years including a new first floor bathroom, refreshed bedrooms including hotel quality beds, bespoke curtains in 2021, a re-modelled kitchen, new sauna and new flooring in 2020 and new decking and exterior paintwork completed in 2022. This fantastic property offers a spacious open plan living room with door leading out to a balcony, modern fitted kitchen with appliances and dining area, two bedrooms, a modern fitted family bathroom and a sauna. This idyllic lodge also offers a private balcony overlooking the trees and surrounding countryside.
Finlakes Holiday Park and Spa is a 5 star award winning holiday park that is set in 130 acres of beautiful South Devon countryside on the edge of Dartmoor, just half an hour from the sea and boasting outstanding leisure facilities including a heated waterpark complete with thrilling flume rides, a children’s water playground and a superbly equipped fitness centre offering classes from yoga to spin along with free-weights. Feel your cares drift away as you experience the exquisite, immersive treatments offered at Finlake’s Sirona Spa complete with 8 treatment rooms, 4 spa experiences including sauna and steam rooms and a large indoor spa pool with jacuzzi. Children will also love the outdoor pool with its water slide and great adventure playground. Nature trails, outdoor tennis courts, two coarse fishing lakes and horse riding provide sporting opportunities for everyone. It is also superbly located only a few miles from the coastal towns of Dawlish, Teignmouth and the English Riviera.
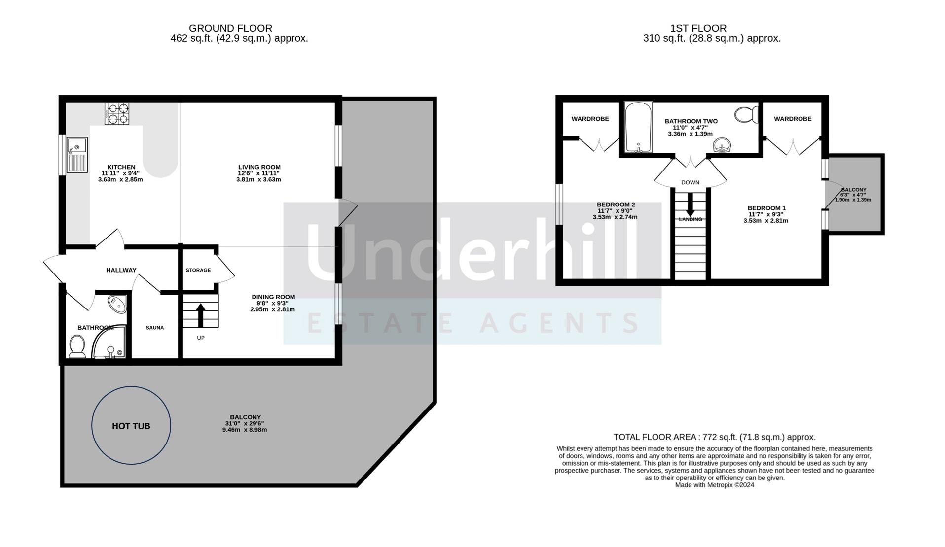
Living Room Area
A bright and spacious open plan living space with double-glazed windows with stunning views, TV point, thermostatic control, down lights, and wood effect vinyl flooring.
Kitchen Area
A modern fitted kitchen with a range of cream shaker style wall and base units, roll top work tops and single bowl stainless steel sink with mixer, built in fan oven and gas hob with extractor over, free-standing fridge freezer, dish washer, down lights, double-glazed window and wood affect vinyl flooring.
Dining Room Area
Fantastic views from the double-glazed window, double-glazed door leading out to the balcony perfect for al-fresco dining, downlights, TV point and wood effect vinyl flooring.
Bathroom One
Modern fitted wet room style bathroom with closed coupled WC, pedestal sink, mains shower, double-glazed window and electric towel rail and vinyl flooring.
Bedroom One
Master bedroom with double-glazed window and door leading out to a small balcony again with far reaching views, king sized bed, fitted wardrobe, downlights and wood effect vinyl flooring.
Bedroom Two
Spacious twin bedroom with double-glazed window to rear, built in wardrobe, downlights and wood effect vinyl flooring.
Bathroom Two
A modern fitted family bathroom with panelled bath with mixer tap, closed coupled WC, vanity basin, extractor fan, downlights and with tile effect vinyl flooring.
Balcony
A spacious L shaped balcony with stunning views over the tree canopy to Dartmoor and Haytor, garden furniture, hot tub with privacy screen, water tap and weatherproof electric socket.
EPC Rating: D
Lease: 85 years remaining on the lease (99 years from Oct 2010)
Agents Note: Over the past 10 years, the current owners have taken advantage of Finlake's sublet scheme and have enjoyed a healthy 8% net yield on average, whilst still being able to take several weeks a year for themselves as family breaks.
Please email/call Underhill Estate Agents for more information of Service Charges and lease.
Please note: Some property images may have been virtually staged using AI technology to illustrate potential interior design ideas.
Property Description
Video
Floor Plan
Map
EPC


































