Underhill Estate Agents are delighted to bring to market this 2 bed, 2020 Carnaby Chantry luxury lodge With stunning lakeside views set in the fantastic award winning Finlake Holiday Resort on the edge of Dartmoor situated on a private plot with no immediate neighbours. This very well maintained holiday home offers a modern open plan living room with double doors leading out to the decking area, modern fitted kitchen with integrated appliances and dining area, master bedroom with ensuite shower room, twin bedroom and a separate family shower room. This lovely lodge offers a private sun deck with its very own hot tub and allocated parking right outside the property. The property is in great condition having never been rented out and no pets nor smokers have ever stayed.
Finlake Holiday Park and Spa is a 5 star award winning holiday resort that is set in 130 acres of beautiful South Devon countryside on the edge of Dartmoor, just half an hour from the sea and boasting outstanding leisure facilities including a heated waterpark complete with thrilling flume rides, a children’s water playground and a superbly equipped fitness centre offering classes from yoga to spin along with free-weights. Feel your cares drift away as you experience the exquisite, immersive treatments offered at Finlake’s Sirona Spa complete with 8 treatment rooms, 4 spa experiences including sauna and steam rooms and a huge indoor spa pool with jacuzzi. Children will also love the outdoor pool with its water slide and great adventure playground. Nature trails, outdoor tennis courts, two coarse fishing lakes and horse riding provide sporting opportunities for everyone. It is also superbly located only a few miles from the coastal towns of Dawlish, Teignmouth and the English Riviera.
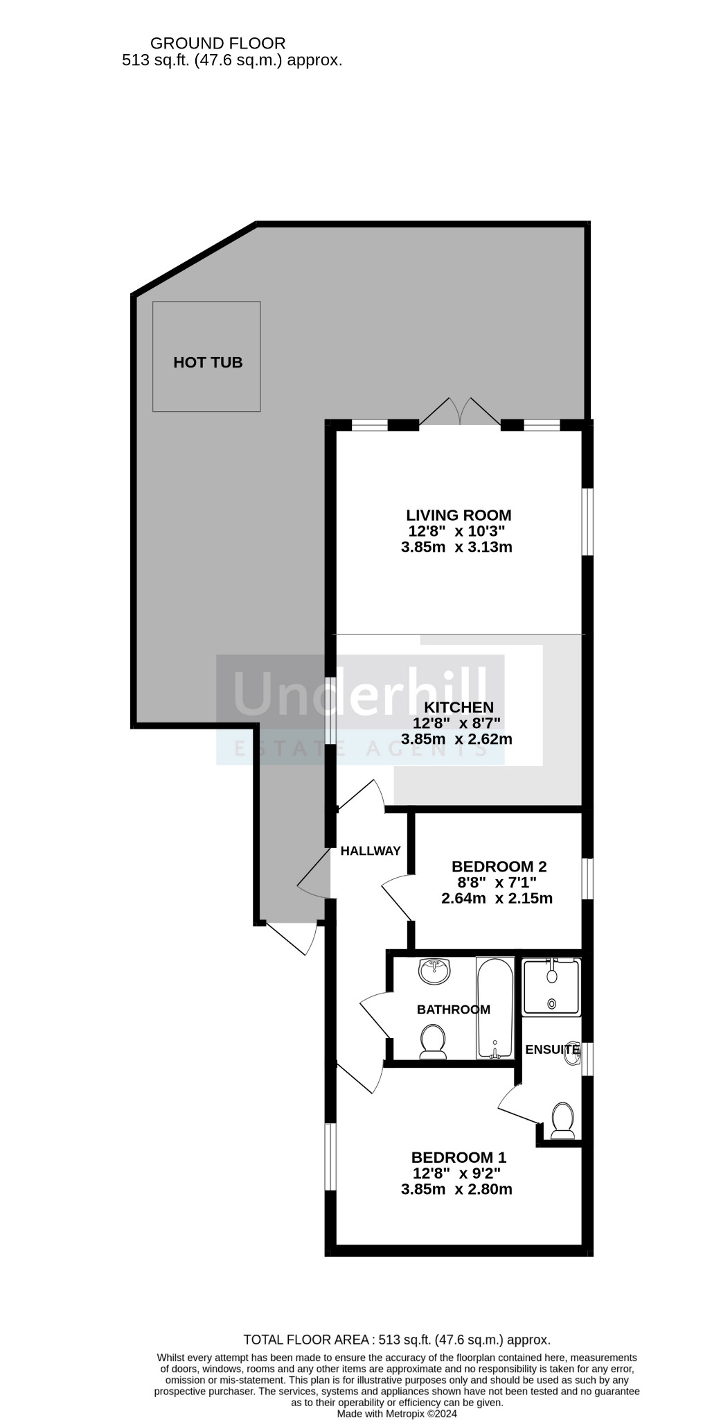
Living Room
A lovely bright and modern living room with UPVC double-glazed window, UPVC double-glazed doors opening up to the sun deck, TV point, downlights and laminate flooring. Open plan to:
Kitchen/Dining Room
Modern fitted kitchen with a range of blue and wood effect wall and base units, marble effect worktops, one and a half bowl stainless steel sink with mixer tap, integrated appliances including: gas hob with extractor fan over, fan oven, microwave, fridge/freezer and dishwasher. Downlights, UPVC double-glazed glass door to side, UPVC double-glazed window, designer radiator, partially tiled walls, and laminate flooring.
Bathroom
A modern fitted shower room with double shower enclosure (mains powered), closed coupled WC, wash hand basin with mixer tap and vanity unit below, downlights, extractor fan, UPVC double-glazed obscured window, partially tiled walls and tiled flooring with underfloor heating.
Bedroom Two
Twin bedroom with UPVC double-glazed window, built in wardrobe, downlights, single radiator and carpeted flooring.
Bedroom One
Master bedroom with UPVC double-glazed window, built in bedroom furniture, downlights, single radiator and carpeted flooring.
Ensuite
Modern fitted shower room with single shower enclosure (mains powered), closed coupled WC, vanity basin with mixer tap, extractor fan, chrome heated towel rail, downlights, partially tiled walls and tiled flooring with underfloor heating.
Outside
An 'L' shaped sun deck with hot tub perfect for star gazing or al-fresco dining. Located close to the fishing lakes as well as the rest of the resort's fantastic facilities. There is also a private parking space directly outside the property.
EPC Rating: Exempt
Please email/call Underhill Estate Agents for more information of Service Charges and Lease information
Park Visit and Lodge viewings are strictly by appointment only by Underhill Estate Agents
Please note: Some property images may have been virtually staged using AI technology to illustrate potential interior design ideas.
Property Description
Video
Floor Plan
Map
EPC
































